#moduláris

Miért várnál éveket és fizetnéd a dupláját? Építs otthont gyorsan, okosan, modulárisan!

Gyorsan, környezettudatosan
építünk 4 évszakos, családi házakat.

A falfestés színe egyénileg választható a pasztell árnyalatokat tartalmazó diszperziós festék színskáláról, az első két színmélységi fokozatból. A fa felületek egyénileg választható színű lazúrfestéssel készülnek, két rétegben felhordva. A szobák és a nappali melegburkolattal, szegőléccel, alátétlemezzel, burkolatváltóval, a Megrendelő által kiválasztott aquastop laminált padlóval, a vizes helyiségben víz és kopásálló vinyl.

Modulházad készen érkezik hozzád!
Telephelyünkön építjük fel, így nem
leszünk útban.

A külső nyílászárók fokozottan hőszigetelt, 6 légkamrás 3 rétegű üvegezéssel, acél betétes műanyag szerkezettel készül kívül – belül fehér színben, fehér, műanyag, manuális redőnnyel, rovarhálóval. Fűtés inverteres 3,5 kW-os klímával, kérésre elektromos kiállás infrapanelnak., melegvíz ellátása 80 L-es elektromos villanybojlerrel.

Családi ház, egyszerű bejelentéssel

A vízszerelés Unipress ötrétegű csővezetékekkel, a szennyvíz-csatornázás KG-PVC lefolyócsővel szerelve kerül kiépítésre. Alapozás (CSAK helyszíni építés esetén!): Pontalap vasalt gerendával, szerelőbetonnal, talajpára elleni vízszigeteléssel VAGY talajcsavar.

MODULHÁZ TÍPUSOK

Baby Zafír

34,89 m2

HELYISÉG

TERÜLET

PADLÓBURKOLAT

NAPPALI

18,08

laminált padlóburkolat

KONYHA & ÉTK.

4,2

laminált padlóburkolat

FÜRDŐ

3,47

laminált padlóburkolat

SZOBA

9,14

laminált padlóburkolat

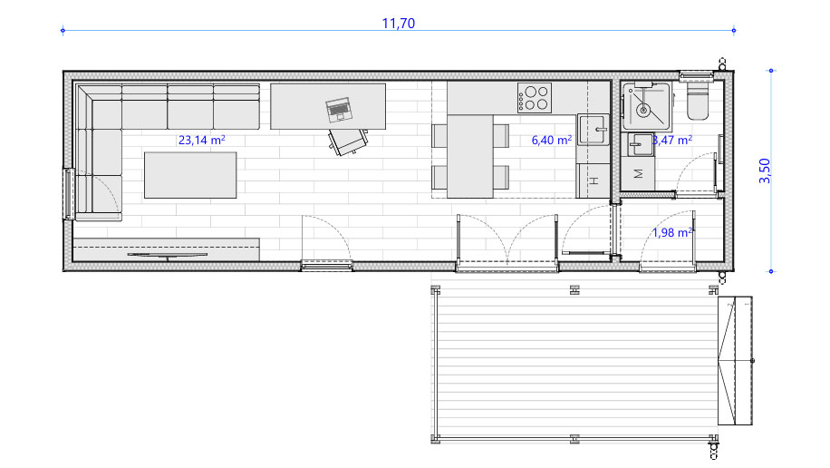
Zafír

42,77 m2

HELYISÉG
TERÜLET
PADLÓBURKOLAT
NAPPALI
18,02
laminált padlóburkolat
KONYHA & ÉTK.
5,18
laminált padlóburkolat
ELŐTÉR
2,81
laminált padlóburkolat
FÜRDŐ
4,32
laminált padlóburkolat
TÁROLÓ
2,4
laminált padlóburkolat
SZOBA
10,04
laminált padlóburkolat

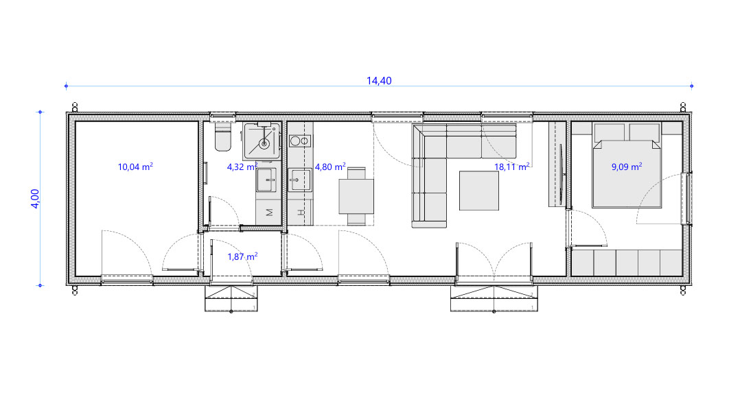
Zafír plusz

49,68 m2

HELYISÉG
TERÜLET
PADLÓBURKOLAT
NAPPALI
18,05
laminált padlóburkolat
KONYHA & ÉTK.
5,4
laminált padlóburkolat
ELŐTÉR
2,02
laminált padlóburkolat
FÜRDŐ
4,32
laminált padlóburkolat
SZOBA 1
10,4
laminált padlóburkolat
SZOBA 2
9,85
laminált padlóburkolat

KÉT MODULOS HÁZ

9×8 m

KÉT MODULOS HÁZ

10×8 m

KÉT MODULOS HÁZ

11×8 m

KÉT MODULOS HÁZ

12×8 m

KAPCSOLAT

Gaia Szíve Kft.
6000 Kecskemét, Fáklya u.8

Gaia Otthon Kft.
6000 Kecskemét, Fáklya u.8

Irodánk:
6000 Kecskemét, Fáklya u.8

Nyitva tartás:
H-P: 8:00 – 16:00

Tóth Sándor
cégalapító-vezető

+36-20/957-5288
toth.sandor@gaiaszive.hu

Adatvédelmi áttekintés

Ez a weboldal sütiket használ, hogy a lehető legjobb felhasználói élményt nyújthassuk. A cookie-k információit tárolja a böngészőjében, és olyan funkciókat lát el, mint a felismerés, amikor visszatér a weboldalunkra, és segítjük a csapatunkat abban, hogy megértsék, hogy a weboldal mely részei érdekesek és hasznosak.